Über das Projekt
Lindenstraße
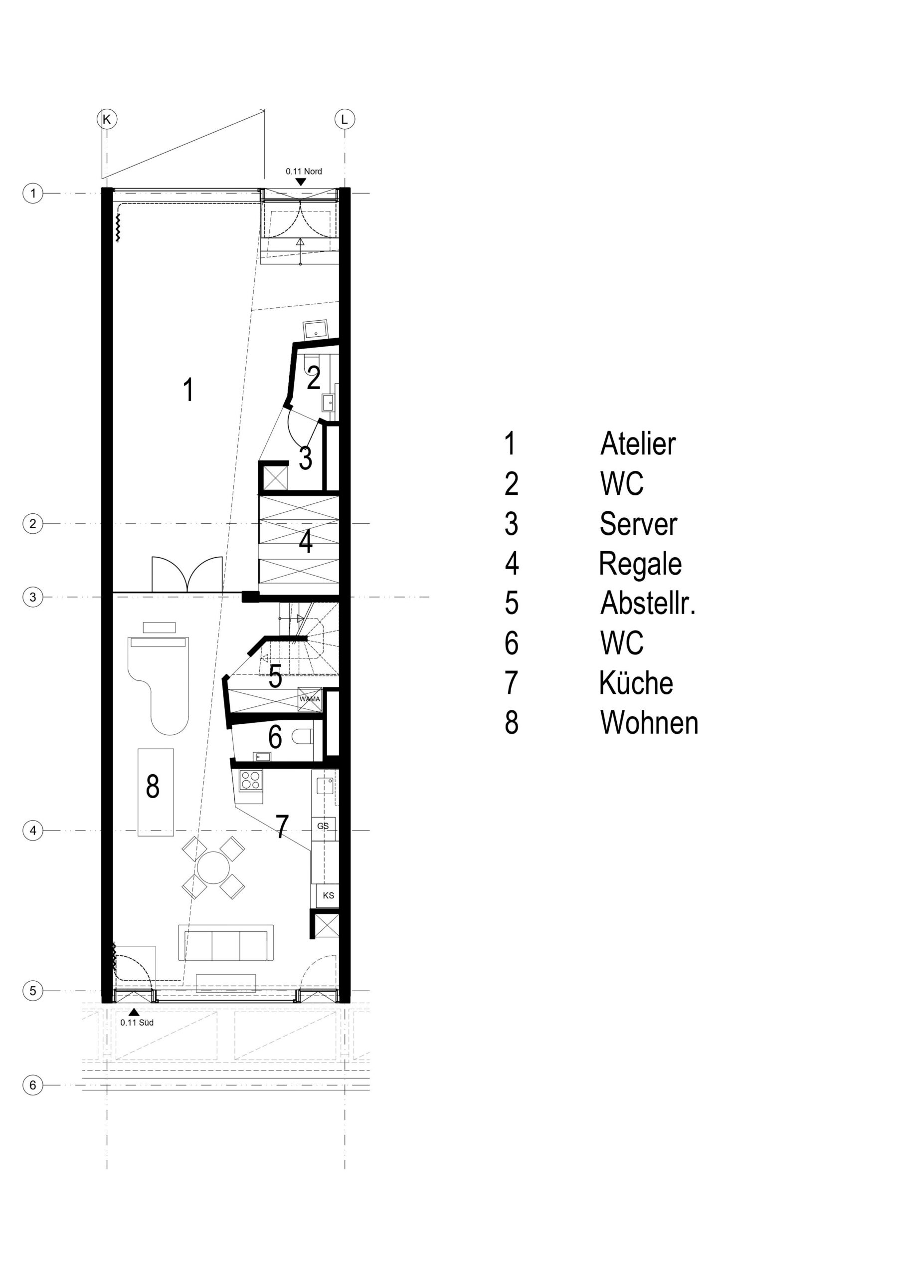
Ausbau zur Atelier- und Wohneinheit
Das Wohn- und Ateliergebäude entstand zwischen 2016-2018 am ehemaligen Blumengroßmarkt in Kreuzberg. Die Bauherrin erwarb zwei Einheiten im Erdgeschoß, mit einer Gesamtlänge von 20,0 m und einer Breite von 5,7 m, welche einen besonderen Loftcharakter besaßen. Die Herausforderung bei der Gestaltung der 155 m² großen Nutzfläche bestand aufgrund der Gebäudetiefe insbesondere in der natürlichen Belichtung. In die vorhandene lichte Raumhöhe von 5,1 m wurde eine Stahlbetonempore eingefügt. Deren geneigte Ausformung lockert die Strenge des Volumens auf und ermöglicht zugleich eine klare räumliche Differenzierung zwischen Atelier- und Wohnbereich. Die Wände wurden in Rohbauoptik gelassen, der Boden mit Sichtestrich ausgeführt; lediglich das rundum gelb geflieste Bad auf der Empore stellte einen farbigen Akzent in dem Raumgefüge dar, dass von seiner unbearbeiteten Materialität, verschachtelten Geometrie und offenen Sichtbezüge lebt.
Adresse
Lindenstraße Berlin-Kreuzberg
Projektart
Sanierung
Fertigstellung
2018
Auftraggeber
Privat
Fotos i+k


















