Über das Projekt
Familiengerechtes Wohnen in PankowStädtebauliche Entwicklung eines Wohnquartiers mit Kindertagesstätte und Kleingewerbe
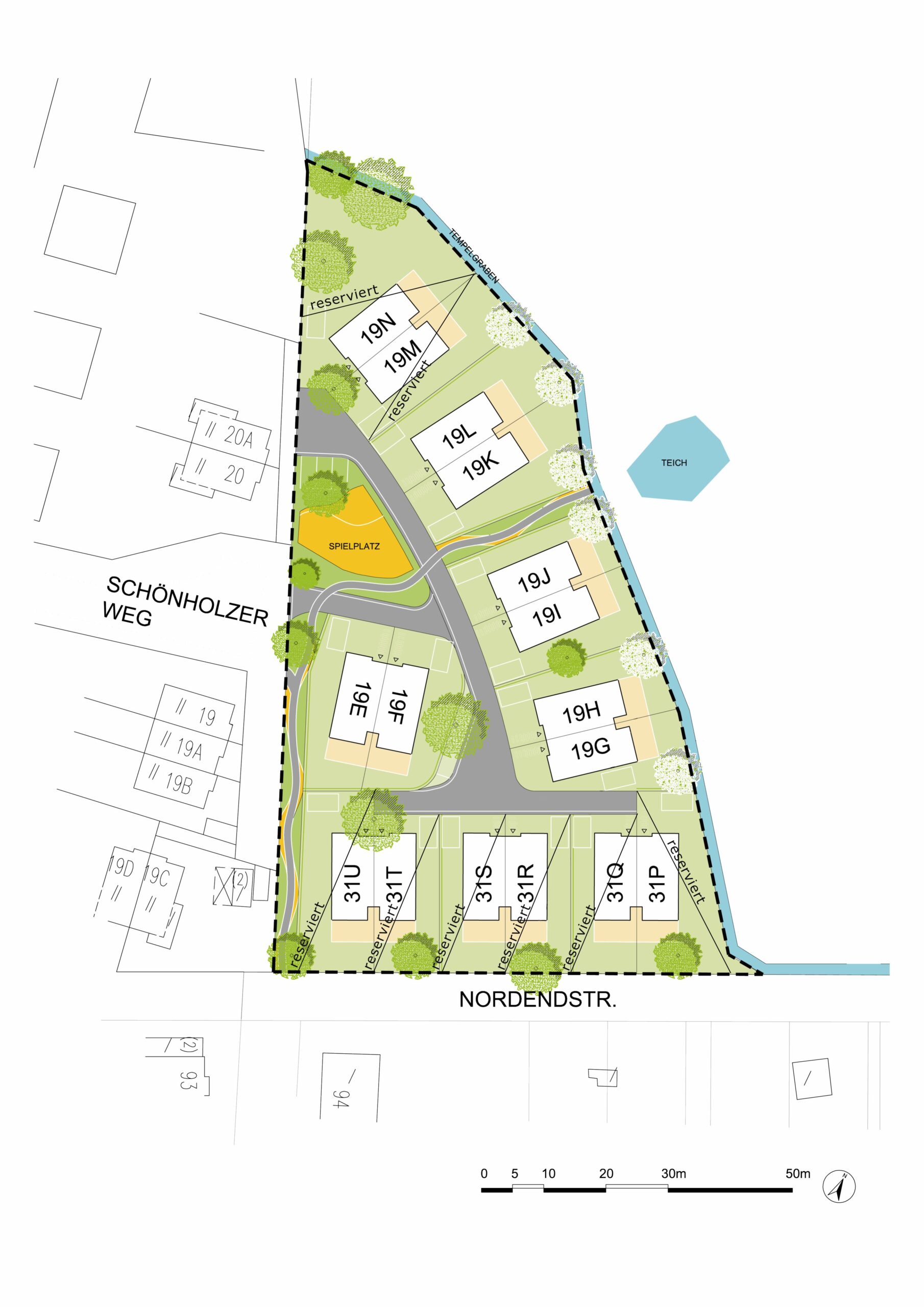
Inmitten des grünen Berliner Ortsteils Rosenthal wurden im ersten Bauabschnitt bereits ein Ensemble aus 16 modernen Doppelhaushälften mit dem Fokus auf familiengerechtem Wohnen realisiert. Zusammen mit dem zweiten Bauabschnitt soll ein durchmischtes Wohnquartier mit Geschosswohnungen, individuellem Wohnen, Seniorengerechten und barrierefreien Einheiten, Kleingewerbe und einer Kindertagesstätte entstehen.
Herzstück der Anlage ist eine gemeinschatlich nutzbare Spiel- und Grünfläche, die Raum für nachbarschaftliches Miteinander schafft.
Adresse
Am Schönholzer Weg 19, Berlin
Konstruktion
Massivbau, Betonbau
Fertigstellung
2020
Auftraggeber
Privat
Visualisierungen locals









